МС БИЛДИНГС завершил проектирование теннисного центра в Москве 4 корта большого тенниса и 6 падел-корта под одной крышей
Компания МС БИЛДИНГС завершила разработку полного комплекта рабочей документации по строительству современного центра большого и падел-тенниса в г. Москве. Объект реализуется в формате сборно-разборных быстровозводимых зданий и станет одним из крупнейших специализированных спортивных комплексов столичного региона.
Состав и архитектурно-конструктивные решения
Проект включает два функциональных объёма, объединённых общей концепцией и инфраструктурой:
1. Спортивный корпус
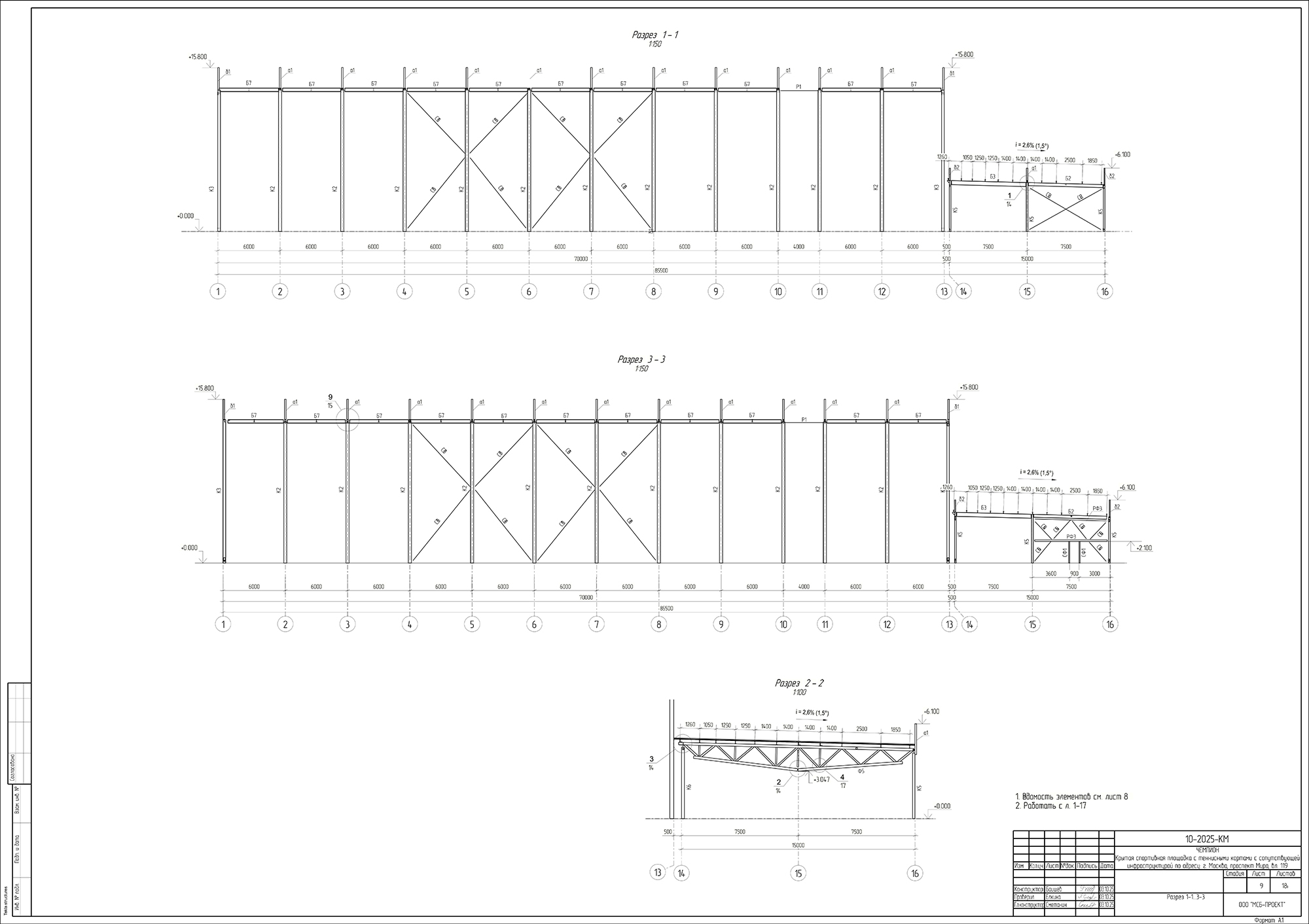
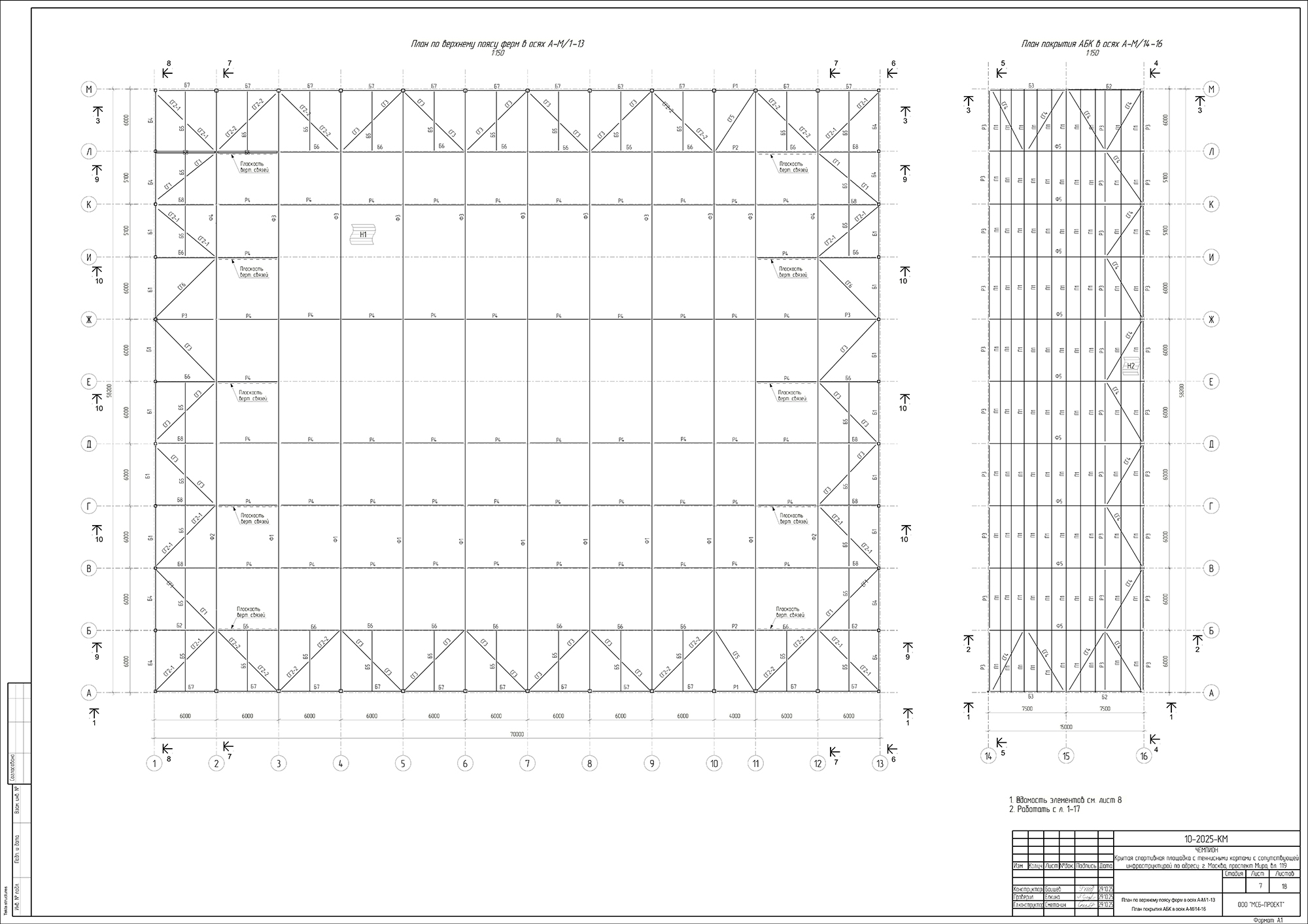
· Размеры в плане: 58,2 × 70,0 м
· Высота здания: 15,0 м
· Конструктивная система: стальной каркас из колонн с жёстким опиранием на фундамент и шарнирным сопряжением с фермами и балками покрытия
· Покрытие: беспрогонная схема с профнастилом Н114-750-1,0 (ГОСТ 24045-16)
· Устойчивость: обеспечивается за счёт жёсткого защемления колонн, системы горизонтальных и вертикальных связей, а также профлиста (для верхних поясов ферм) и распорок (для нижних поясов)
Внутри корпуса разместятся:
· 4 корта для большого тенниса
· 6 падел-корта
Ограждающие конструкции:
· Стены — трёхслойные сэндвич-панели толщиной 150 мм с витражными вставками
· Кровля — мембранная система по профлисту с утеплением 150 мм (пароизоляция → утеплитель → гидроизоляция), уложенная с соблюдением технологии герметичности, плотности и вентиляции
· Кровля — плоская, с организованным водостоком
2. Административно-бытовой корпус (АБК)
· Размеры: 58,0 × 15,0 м
· Высота: 6,1 м
· Каркас: колонны из гнутого замкнутого профиля квадратного сечения, жёстко защемлённые в фундамент
· Сопряжения: шарнирные по балкам и фермам
Решения:
· Наружные стены — сэндвич-панели 150 мм
· Окна и витражи — из алюминиевых профильных систем
· Кровля — плоская, неэксплуатируемая, с мембранной гидроизоляцией и парапетом ≥1000 мм
· Внутренние перегородки — по системе Knauf (ГКЛ на металлокаркасе)
· Коммуникационные шахты — по типу С 666 (Шифр М8.3/2010) с минераловатным заполнением и двойной обшивкой из влагостойкого ГВЛ
Нормативные и эксплуатационные характеристики
· Класс функциональной пожарной опасности: Ф3.6
· Степень огнестойкости здания: II
· Конструктивная пожарная опасность: С0
· Пожарная опасность строительных конструкций: К0
· Категория по взрывопожарной опасности: не подлежит категорированию
· Уровень ответственности: нормальный (ГОСТ 27751-2014)
· Срок службы: не менее 50 лет
Почему это важно?
Теннисный центр в Москве — ещё один пример глубокой проработки проекта «под ключ» с учётом требований к энергоэффективности, пожарной безопасности, эксплуатационному комфорту и долговечности. Вся документация разработана собственным проектным отделом МС БИЛДИНГС, что гарантирует полное соответствие стандартам, возможность прохождения государственной экспертизы и ввода в эксплуатацию как объекта капитального строительства.
Проект подготовлен к старту строительных работ — с использованием внутренних ресурсов компании: от производства металлоконструкций на заводе до монтажа и пусконаладки всех инженерных систем.
















